196 N 0200 E, Moab, UT

$1,999,999

Previous Next

1.84

Acres

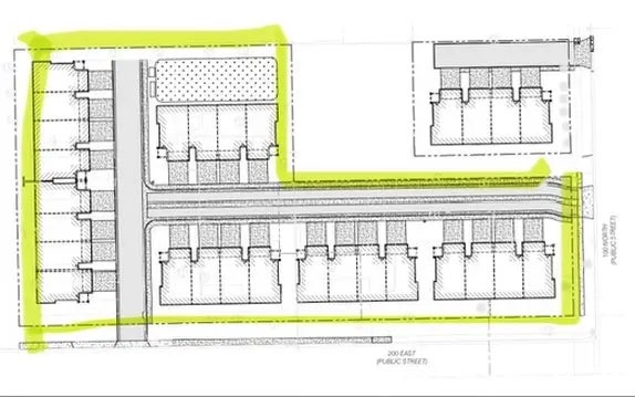
About 196 N 0200 E

Located just a couple blocks from Main Street in Moab, this property is within walking distance of all the action! This development has been approved for 24 townhomes. Permit-ready. Four identical units have already been built on the parcel adjacent to this one. MLS#2064049 for reference.

Features of 196 N 0200 E

MLS® # 2070426
Price $1,999,999
Acres 1.84
Type Land
Sub-Type Multi Family
Status Active

Community Information

Address 196 N 0200 E
Area Moab Valley; Pack Creek
City Moab
County Grand
State UT
Zip Code 84532

Amenities

Utilities Natural Gas Available, Electricity Available, Sewer Available
Is Waterfront No
Has Pool No

Interior

Fireplace No

School Information

District Grand
Elementary Helen M. Knight
High Grand County

Additional Information

Date Listed March 14th, 2025
Days on Market 63
Zoning Multi-Family
Foreclosure No
Short Sale No
RE / Bank Owned No

Listing Details

AgentDenise Mendenhall
OfficeReal Estate Essentials

Listing Map

Request a Showing

Provide a valid email address.
When would you like to view this property?